Edifício Lausanne: um ícone da arquitetura modernista na Avenida Higienópolis

O Edifício Lausanne, localizado em São Paulo, na Avenida Higienópolis, nº 101, é considerado um dos grandes marcos da arquitetura modernista brasileira. Além disso, ele também ocupa o seu espaço como um ícone residencial altamente emblemático para o bairro de Higienópolis.
Ele foi projetado com uma area de terreno de 1.635 m2, fruto de um desmembramento da Vila Penteado. Projetado . pelo arquiteto alemão Adolf Franz Heep, para a construtora Auxiliar, a obra foi concluída no ano de 1958. O edifício, em si, representa uma síntese da estética, funcionalidade e inovação construtiva, refletindo todo o espírito de modernização urbana que corresponde à capital paulista no pós-guerra.
O projeto ousado de Franz Heep
Formado na Escola de Artes e Ofícios de Frankfurt, bem como na École Spéciale d’Architecture de Paris, Franz Heep fez com que seu nome se destacasse entre os maiores da arquitetura moderna no Brasil. Antes mesmo de projetar o Edifício Lausanne, o arquiteto já havia feito uma colaboração com Jacques Pilon em diversos projetos voltados para a habitação coletiva da classe média.
O Lausanne, por sua vez, foi o primeiro projeto residencial de todo o país, tornando-se uma grande referência graças à sua ousadia formal e soluções técnicas circundadas por inovação.
A estética e arquitetura modernista
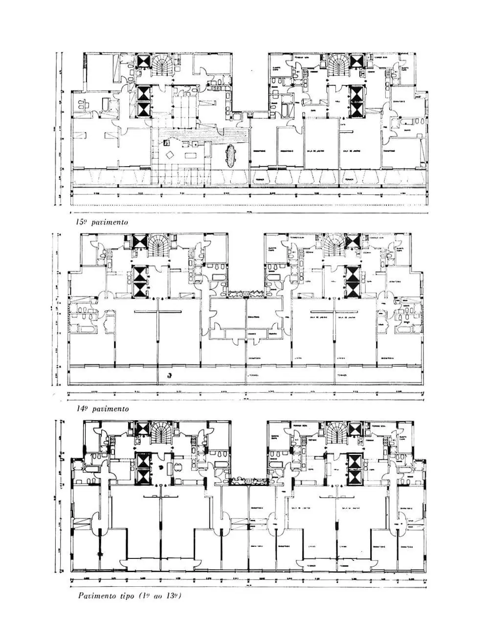
O Edifício Lausanne é formado por duas alas com entrada própria, tem a area construída de 13.960 m2, com um jardim frontal idealizado na época pela Jadinarte - Lux e Stoll e que se encontra com as mesmas características até os dias de hoje com folhagens de meia sombra. Com plantas baixas e harmonizando com os elementos vazados e os paines decorativos!
O Edificio tem um recuo de 9,30 metros em relação à avenida que o cerca. Isso cria um espaço de transição entre o privado e o público. Possui 15 pavimentos, o andar é constituido em cada ala por dois apartamentos, 2 elevadores sociais e um elevador de serviço com metragens de 179,00 e 182 m2 úteis. Ao todo, são 59 unidades.
Nestes, há três dormitórios, salas amplas, terraço coberto e áreas de serviço bem delimitadas. A fachada tem uma marca extremamente pessoal, com brises-soleil deslizantes em cores intercaladas entre o bege, o verde, o vermelho e o branco formando um mosaico.
Essa escolha não somente protege o ambiente interno da incidência solar, mas também oferece dinamismo e movimento a fachada do edifício, permitindo que a sua aparência mude de acordo com a posição das venezianas.
Estrutura e soluções construtivas
A estrutura do edifício é feita em estacas pre moldadas e concreto armado, com fundações compostas por estacas previamente moldadas. O projeto estrutural foi desenvolvido por Júlio Kassoy, Ucraniano e o Italiano Mário Franco, ambos engenheiros renomados.
O pavimento térreo possui elevação de 1,60 metro acima do nível da rua, permitindo que haja um subsolo semi-enterrado, o que otimiza o uso do terreno e, também, facilita o acesso às garagens. Estas possuem 114 vagas ao todo. As duas alas contam com acessos e circulações verticais independentes, sendo interligados no pavimento térreo.
Ela é dividida em duas alas com um volume central. Por meio dessa configuração, a ventilação cruzada ocorre. Além disso, a iluminação natural dos apartamentos ganha um grande destaque.
Arte integrada à arquitetura
Um dos maiores destaques do Edifício Lausanne é a sua integração entre arquitetura e arte. No hall social, é possível encontrar um mural completo do artista Clóvis Graciano, parceiro frequente de Heep. O artista passou a dar maior foco para o muralismo a partir dos anos 1950.
A obra oferece um caráter ainda mais exclusivo para o edifício, evidenciando a preocupação em trazer uma experiência estética completa para todos os moradores e visitantes da região. Reconhecimento e preservação.
No ano de 1991, o Edifício Lausanne foi tombado pelo Conselho de Defesa do Patrimônio Histórico, Arqueológico, Artístico e Turístico (CONDEPHAAT) e, pouco depois, pelo Conselho Municipal de Preservação do Patrimônio Histórico, Cultural e Ambiental da Cidade de São Paulo (CONPRESP), reconhecendo toda a sua relevância arquitetônica e histórica para a cidade.
Apartamentos disponíveis no Edifício Lausanne
Se você está em busca de um imóvel neste edifício histórico, confira algumas opções disponíveis na Mello Imóveis:






